(ZN63、JKN1)VS1-12高压真空断路器(侧装式)-固封式

产品概述
VS1-12简介
(JKN)VS1-12侧装固封式真空断路器 ,适用于额定电压12kV、频率50Hz的三相电力系统中,作为保护和控制电器使用,由于真空断路器的特殊优越性,尤其适用于频繁操作的场所。
(JKN)VS1-12侧装固封式真空断路器 采用固定式结构,主要用于固定式开关柜中,亦可单独使用,对输配电线路进行控制和保护,由温州驰辉电气有限公司制造生产。
永磁操动机构原理
当断路器处于合闸或分闸位置时,线圈中无电流通过,永久磁铁利用动静铁芯提供的低磁阻抗通道将铁芯保持在上下极限位置,而不需要任何机械锁扣。当有动作信号时,合闸或分闸线圈中的电流产生磁势,动、静铁芯中由线圈产生的磁场与永磁体产生的磁场叠加合成,动铁芯连同固定在上面的驱动杆,在合成磁场力的作用下,在规定的时间内以规定的速度驱动开关本体完成开合任务。此机构之所以被称为两位式双稳态原理结构,是由于动铁芯在行程终止的两个位置,不需要消耗任何能量即可保持。而传统的电磁机构,动铁芯是通过弹簧的作用被保持在行程的一端,而在行程的另一端,靠机械锁扣或电磁能量进行保护。由上述可知,永磁操动机构是通过将电磁铁与永久磁铁特殊结合,来实现传统断路器操动机构的全部功能:由永久磁铁代替传统的脱锁扣机构来实现极限位置的保持功能,由分合闸线圈来提供操作时所需要的能量。可以看出,由于工作原理的改变,整个机构的零部件总数大幅减少,使机构的整体可靠性有可能得到大幅提高。由于永磁机构本身的特点,可以提高断路器的可靠性,同时合分闸特性又只与线圈参数有关,因此永磁机构的分合闸特性可以通过电子或微机系统来控制,实现速度特性的智能控制,具有自检测功能。控制回路可采用电子控制、外接合闸直流接触器。
灭弧室灭弧原理
(JKN)VS1-12侧装固封式真空断路器 采用真空灭弧室,以真空作为灭弧和绝缘介质,灭弧室具有极高的真空度,当动、静触头在操动机构作用下带电分闸时,在触头间将会产生真空电弧,同时由于触头的特殊结构,在触头间隙中也会产生适当的纵磁场,促使真空电弧保持为扩散型,并使电弧均匀分布在触头表面燃烧,维持低的电弧电压,在电流自然过零时,残留的离子、电子和金属蒸汽在微秒数量级的时间内就可复合或聚在触头表面和屏蔽罩上,灭弧室断口的介质绝缘强度很快被恢复,从而电弧被熄灭,达到分断的目的,由于该真空断路器采用磁场控制真空电弧,因而具有强而稳的开断电流的能力。
产品参数

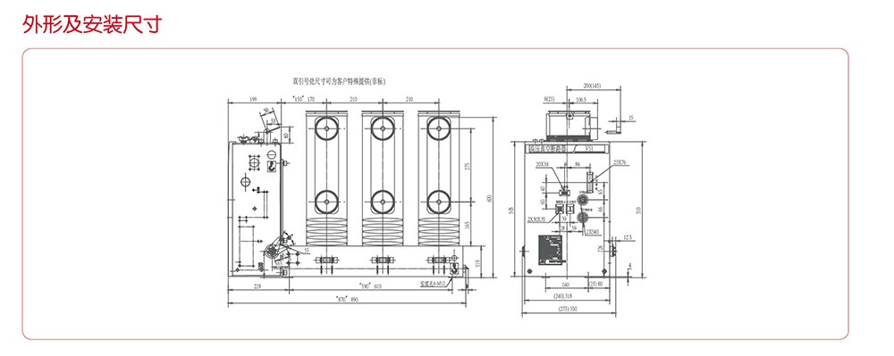
外形及安装尺寸
